Henry

Self Employed Electrician and Multi Trade Turned Developer

Henry

Self Employed Electrician and Multi Trade Turned Developer

Case Study

Completed The Property Developers Blueprint & Mentorship Program

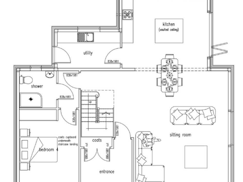
Self employed electrician and multi trade turned developer after completing the Property Developers Blueprint. Henry wanted to stop working for customers on many small jobs and concentrate on just 1.

He built the whole timber frame himself with a labourer and saved £20,000 in the month it took him. Henry built most of the house himself and is now leveraging more trades on his current site.

Recent Developments

Built Over 200+ Houses, take a look at some of are Recent Developments.

Education

Online training, Business Planning Retreat, and Mentoring Programs.

Reviews

Take a look what our students say about our Training & Mentorship Programs.

Recent Developments

Built Over 200+ Houses, take a look at some of are Recent Developments.

Education

Online training, Business Planning Retreat, and Mentoring Programs.

Reviews

Take a look what our students say about our Training & Mentorship Programs.

Become a Property Developer

Want to become a property developer?

Have you ever wanted to become a property developer but didn’t know where to start? You’re not alone — and that’s exactly why we created our Online Property Development Blueprint. Whether you’re brand new or looking to take your first project to the next level, we break everything down step-by-step so you can learn with confidence, avoid costly mistakes, and start building real profits.

Become a Property Developer

Want to become a property developer?

Have you ever wanted to become a property developer but didn’t know where to start? You’re not alone — and that’s exactly why we created our Online Property Development Blueprint. Whether you’re brand new or looking to take your first project to the next level, we break everything down step-by-step so you can learn with confidence, avoid costly mistakes, and start building real profits.

Become a Property Developer

Want to become a property developer?

Have you ever wanted to become a property developer but didn’t know where to start? You’re not alone — and that’s exactly why we created our Online Property Development Blueprint. Whether you’re brand new or looking to take your first project to the next level, we break everything down step-by-step so you can learn with confidence, avoid costly mistakes, and start building real profits.