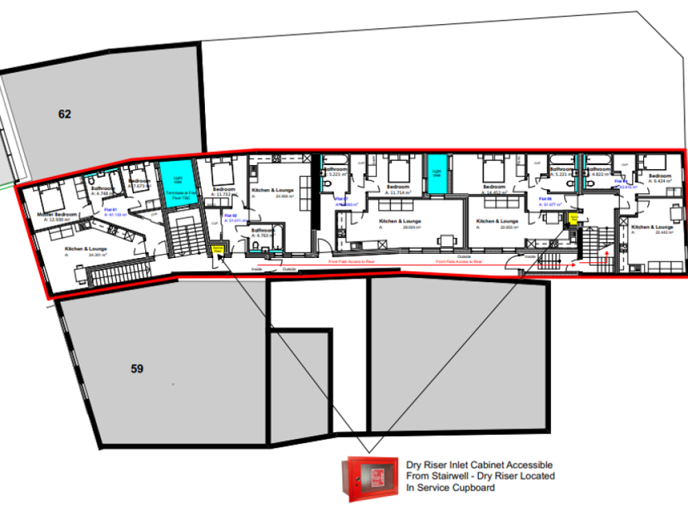
Being based in London, many believe there are no developments to be found, especially small to medium but there are once you start looking, especially if you move to the outskirts like this one in Reading.
Laurel attended the 3 day Property Developers Blueprint event and signed up for Andy’s mentoring program. A couple of deals fell through but this great airspace development was agreed and is a mixed use with commercial downstairs and residential upstairs.
These are great projects to refinance at the end and hold for cash flow plus there’s also no tax to pay on profits. This projects profit is £1.2M pre finance costs which is truly life changing.










