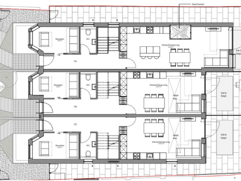
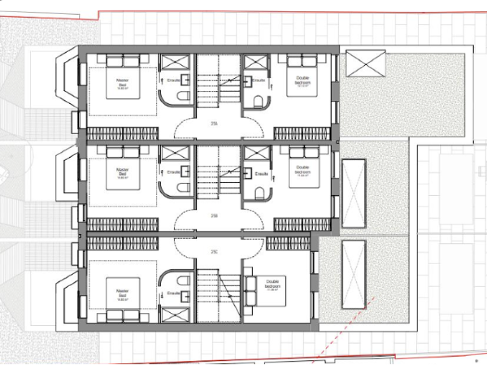
Paul works in finance as a chartered accountant and always wanted to become a developer so relies on main contractors. He completed the Property Developers Blueprint and joined Andy’s Mentoring Program where he has successfully sourced a plot and all of the funding to build 3 town houses in London.
The 3 houses are worth £4,675.758 with a profit of £1,288.926. Andy helped Paul structure the deal to defer the purchase funds reducing the equity required at the beginning. Paul will pay himself a project managers fee throughout the build





